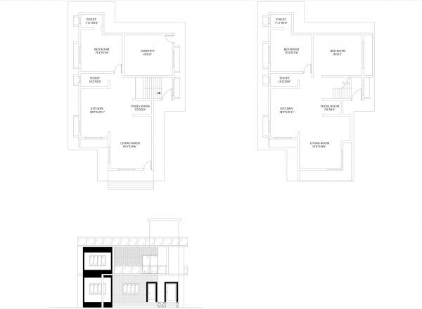
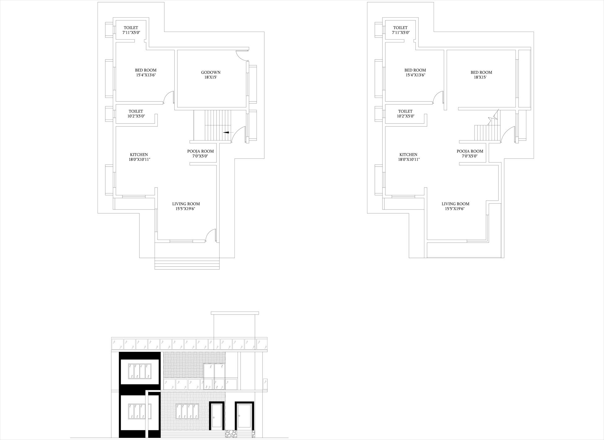
CAD Plans Projects

CAD Plans & Drawings - 003
CAD Plans & Drawings - 002
CAD Plans & Drawings - 001